Adaptive Reuse

Architectural Design

In my second-year studio, the focus was on adaptive reuse. The project was structured as a three-step process. First, we analyzed a precedent, and I selected House Berlin by Karlost for its innovative design approach. The second step involved working with an existing building—620 Yale Street—a brick structure situated within an industrial and electrical field. Finally, the third step required combining insights from the precedent and the existing building to create a new design. The result was a functional living and studio space tailored for a single occupant.

Free HTML5 Bootstrap Template by FreeHTML5.co
Free HTML5 Bootstrap Template by FreeHTML5.co
Free HTML5 Bootstrap Template by FreeHTML5.co

Social Heights

Architectural Design

This project was completed during my first year in architecture school at the University of Houston. The assignment focused on creating a pavilion-style outdoor space on a designated campus lot, aimed at providing students with a place to relax and recharge between classes. My design revolves around a concrete structure that doubles as social stairs, blending functionality and aesthetics. The stairs serve as a dynamic gathering space where students can sit, interact, or simply pass time, while also offering an elevated vantage point to enjoy views of the campus. The project highlights the importance of designing spaces that foster community and enhance the everyday campus experience.

Free HTML5 Bootstrap Template by FreeHTML5.co
Free HTML5 Bootstrap Template by FreeHTML5.co
Free HTML5 Bootstrap Template by FreeHTML5.co
Free HTML5 Bootstrap Template by FreeHTML5.co
Free HTML5 Bootstrap Template by FreeHTML5.co
Free HTML5 Bootstrap Template by FreeHTML5.co

Tech

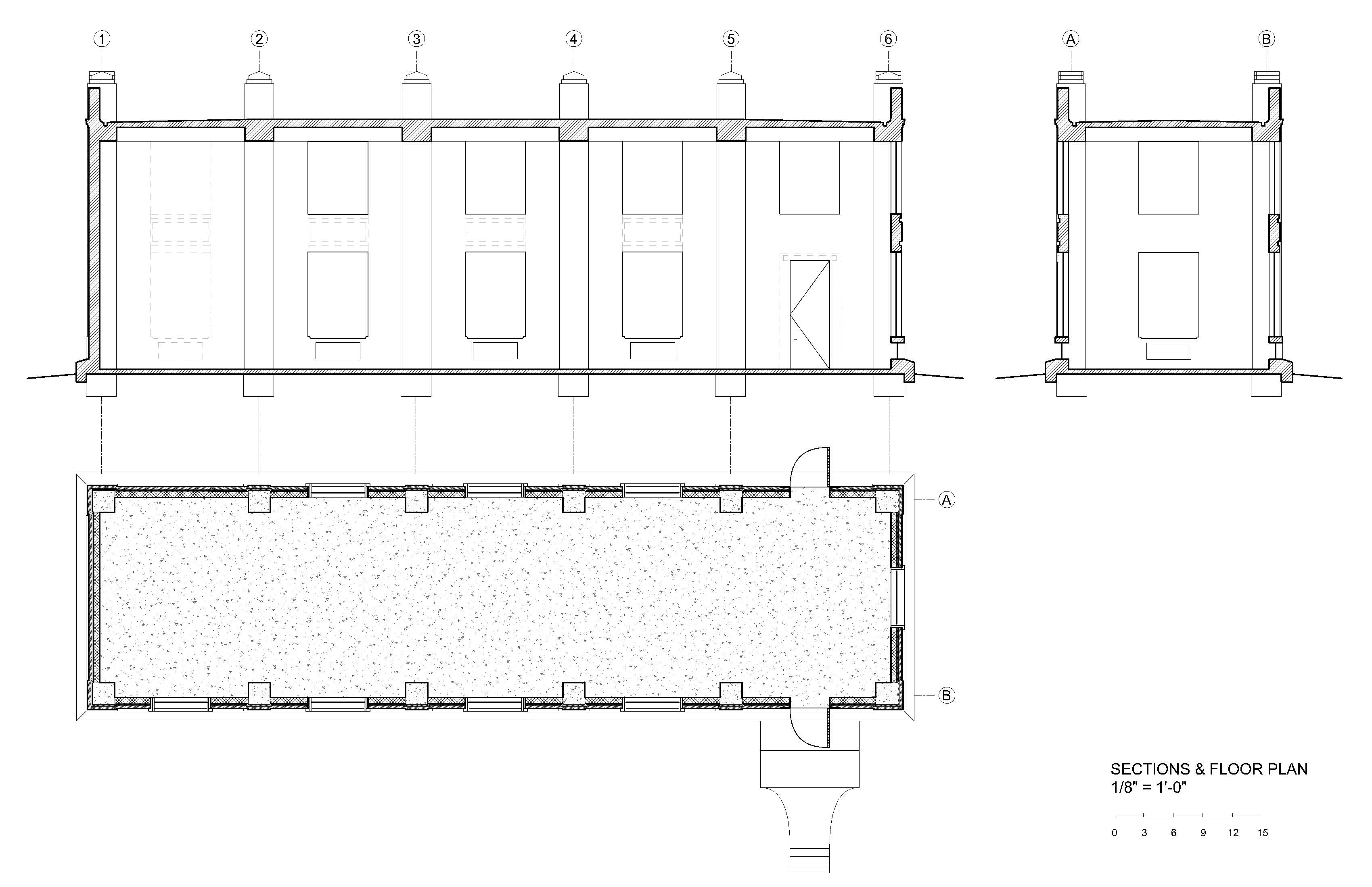
Architectural Design

Throughout the semester, we completed a series of assignments focused on understanding and illustrating the assemblies of various structural systems, including wood, steel, and concrete buildings. Each assignment involved creating detailed drawings that showcased the components and construction techniques specific to these materials. These exercises provided a comprehensive overview of the structural systems, helping us build a strong foundation in technical design and assembly methods while improving our ability to communicate ideas through precise technical drawings.

Free HTML5 Bootstrap Template by FreeHTML5.co
Free HTML5 Bootstrap Template by FreeHTML5.co
Free HTML5 Bootstrap Template by FreeHTML5.co